photographies © Eric Saillet
[Approche HQE sur toutes les cibles – Bâtiment BBC avec certification]
Du point de vue de l’automobiliste, la sobriété du dessin de l’écran et la pose de celui-ci directement sur la GBA, permet d’éviter les effets d’escalier et de restituer les courbes et la simplicité du ruban autoroutier.
Écrans acoustiques le long des autoroutes A7 et A9
Orange (84)
Maîtrise d’ouvrage : A.S.F.
Maîtrise d’œuvre : Jocelyne Duvert, architecte D.P.L.G. (associée de la Sarl Tectoniques de 1987 à 2007) et Tectoniques, architectes. Acouphen acousticien, Agibat bureau d’études techniques, E.C.P.I. économiste
Programme : réalisation d’écrans de type absorbant en trois tranches de réalisation :
tranche 1 (2003) – Autoroute A7 – 8 écrans
tranche 2 (2004) – Autoroute A7 – 3 écrans tranche 3 ( (2005) – Autoroute A9 – 4 écrans . Linéaire Total des trois tranches : 4 km
Calendrier : réalisation 2003 à 2005
Coût :
Tranche 1 – 2 680 000 E TTC valeur août 2002
Tranche 2 – 750 000 E TTC valeur février 2005
Tranche 3 – 1 300 000 E TTC valeur février 2006
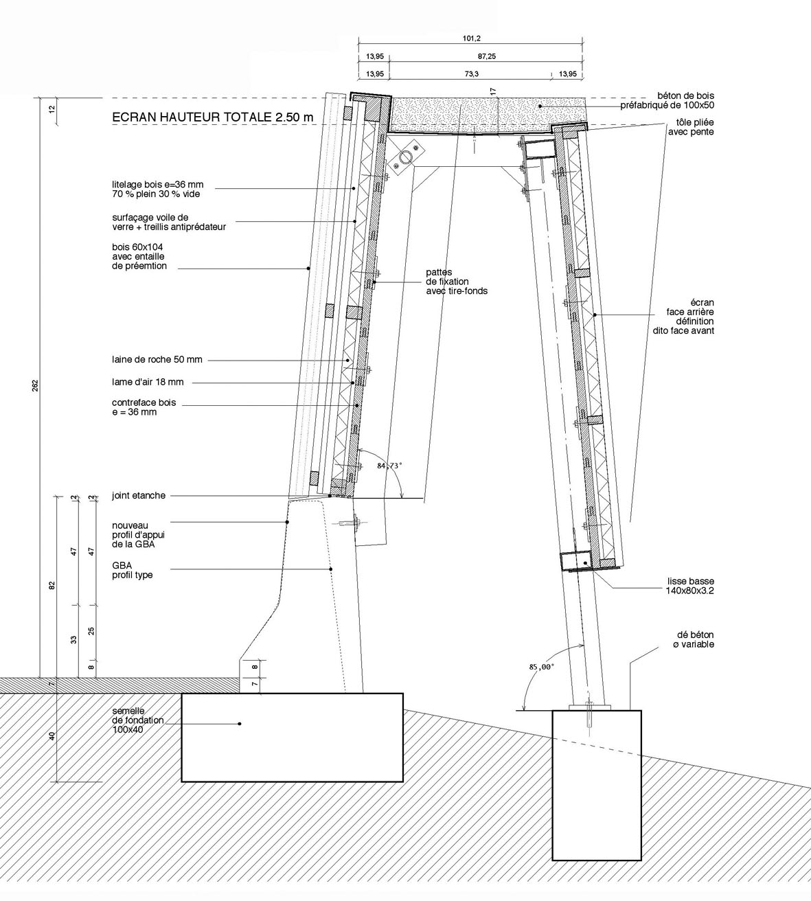
La faible largeur disponible au-delà de la bande d’arrêt d’urgence ainsi que l’implantation de l’autoroute en surplomb des territoires qu’elle traverse, imposait de proposer un écran acoustique posé sur la GBA.
La coupe type étudiée par l’équipe constituée d’un architecte, d’un acousticien et d’un bureau d’études structure, correspond à un écran « épais » proposant deux arêtes de diffraction et un sommet composé d’un matériau absorbant.
L’ensemble du dispositif permet une adaptation au cas par cas (soit deux faces absorbantes soit une seule face) mais surtout autorise une hauteur totale (écran +GBA) réduite de 1 mètre.
Cette réduction de hauteur pour une même efficacité de protection acoustique est particulièrement utile dans le cas de riverains implantés ici en contre bas.
Afin de réduire encore la présence du « mur acoustique » côté riverains, nous avons proposé une végétalisation dense des talus arrière à base de végétaux nécessitant peu d’entretien.
L’effet « d’écart » ainsi créé par l’association cumulée d’une face arrière habillée par un claustra bois et d’un talus végétalisé est bénéfique au rendu global de l’écran côté habitant.
Par ailleurs, le choix du bois comme le choix de la filière sèche (structure métallique préfabriquée en atelier) sont ici pensés dans le cadre d’une approche environnementale.
– La structure métallique (ancrage au sol ponctuel tous les 12 mètres et modules de 3 mètres) permet de limiter le temps du montage sur place et de changer facilement les modules endommagés.
– Le choix du bois (pin maritime d’origine française) permet également d’utiliser des matériaux peu énergivores à la production. Dans le cadre de cette opération, les écrans bois ont été traités pour améliorer leur pérennité, mais l’essence choisie comme le type d’utilisation permettait un emploi sans traitement.






